İş Veren: IQ-ALÜMİNYUM A.Ş.
Yer: MENEMEN/İZMİR
Proje Tarihi: 2015
Arsa Alanı: 20.000 m2
İnşaat Alanı: 8.000 m2
Hizmetler: PROJE + KONTROL + UYGULAMA
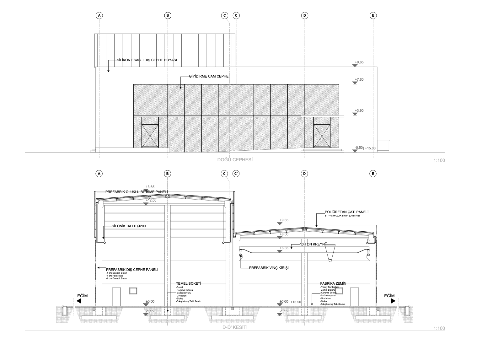
İzmirin Menemen ilçesinde bulunan ve bir fabrika yapısı ola IQ-Alüminyum uzun bir üretim bandına eşlik eden bir kitle ile çözülmüştür.
Serbest plan yöntemlerine sadık kalınan projeden bizi modernist bir oyulumla dikkatleri çekmektedir. Oldukça davetkar bir etki yaratan bu oylumun bizi sıcak bir giriş birimi ile karşılamaktadır. Iq-Alüminyum üretim faliyetlerine devam etmektedir.










